Часть 1 | Часть 2 | Часть 3 | Часть 4 | Часть 5
Пособие к СНиП 2.09.03-85 по проектированию отдельно стоящих опор и эстакад под технологические трубопроводы Часть 3
|
ПРИЛОЖЕНИЕ 1
ПРИМЕРЫ РАСЧЕТА ОТДЕЛЬНО СТОЯЩИХ ОПОР И ЭСТАКАД
Пример 1. Рассчитать отдельно стоящую промежуточную железобетонную опору (рис. 1, опора № 1) на технологические трубопроводы. Характеристика трубопроводов приведена в табл. 1. Подвижные опорные части трубопроводов - стальные, скользящего типа. Вес снегового покрова р0=1000 Па. Нормативная ветровая нагрузка qn =230 Па. Коэффициент надежности по назначение gn=1 *.
Рис. 1. К примеру расчета отдельно стоящих опор а - схема трубопроводной трассы; б - раскладка трубопроводов на опоре; 1 - опора с подвижным опиранием трубопроводов; 2 - опора с неподвижным опиранием трубопроводов
Таблица 1
РЕШЕНИЕ НАГРУЗКИ Нормативная снеговая нагрузка на трубопроводы учитывается только для трубопроводов с температурой ниже +30°С (трубопроводы № 2, 3, 4) рn=р0с=1000·0,2=200 Па, где с=0,2 принимается для трубопроводов при диаметре трубопровода d£600 мм. Расчетная снеговая нагрузка на 1 м длины траверсы рс =рсn·g1·L=1·0,2·1,4·12=3,4 кН/м, где L - шаг опор. Высота ветровой полосы, учитываемая в расчете, принимается равной диаметру наибольшего трубопровода d=0,53 м. Расчетная сосредоточенная ветровая нагрузка от трубопроводов на одну колонну опоры рн= =qng1dL·0,5=0,23·1,4·0,53·12·0,5=1 кН, где g1=1,4 - коэффициент надежности по нагрузке; 0,5 - коэффициент распределения нагрузки между колоннами опоры. Вертикальная расчетная нагрузка от собственного веса трубопроводов с продуктом на опорную часть трубопровода: Р1=(0,4 + 0,08)1,1·12=6 кН; Р2=Р3=Р4=(2,2 + 0,05)1,1·12=30 кН; Р5=Р6=(1 + 0,55)1,1·12=20 кН; Р7=(0,8 +0,32)1,1·12=15 кН, где 1,1 - коэффициент надежности по нагрузке. Вертикальная расчетная нагрузка на опорную часть трубопроводов при гидравлическом испытании: Р1=(0,4·1,1 + 0,18)12=7,4 кН; Р2=Р3=Р4= =(2,2·1,1 + 2,08)·12=54 кН; Р7=(0,8·1,1 + 0,35)·12=14,8 кН. Горизонтальная расчетная нагрузка на опорную часть от сил трения трубопроводов при коэффициенте трения в скользящих опорных частях «сталь по стали», равном 0,3: Рх1=6·0,3=2 кН; Рх2=Рх3=Рх4=30·0,3=9 кН; Рх5=Рх6=21·0,3=6 кН; Рх7=15·0,3=5 кН. Принимаем траверсу типовой конструкции сечением 250´500 мм, длиной 4,2 и весом 13 кН. Расчетная нагрузка от собственного веса траверсы g=13·1,1/4,2=3,4 кН/м. Расчет траверсы Расчетная схема и схема приложения расчетных вертикальных нагрузок показаны на рис. 2, а.
Рис. 2. К расчету траверсы на вертикальные нагрузки а, б, в - схемы вертикальной нагрузки; г - эпюра изгибающих моментов Схему загружения одним трубопроводом во время гидравлических испытаний не учитываем, так как в данном случае это приводит к меньшим усилиям в конструкции. Определяем изгибающие моменты от вертикальной нагрузки для двух схем загружения: пролета и консолей. Загружение пролета траверсы (рис. 2, б). Опорные реакции: RA=(21·2,02 + 30·1,37 + 30·0,5 + 3,4·3,3·1,65-3,4·0,9·0,45 + 3,4·1,64·0,82)/2,4=50 кН; RB=(21·0,38 +30·1,03 + 30·1,9 + 3,4·1,64·1,58 + 3,4·3,3·1,65-3,4·0,9·0,45)/2,4=51 кН. Изгибающий момент в месте опирания трубопровода № 4 (схема на рис. 2, б) М=50·1,03-21·0,65-3,4·1,932/-3,4·0,272/2=31,5кН·м Изгибающий момент в месте опоры от вертикальной нагрузки на правой консоли (рис. 2, в) M=-3,4·0,642/2-3,4·0,92/2-6·0,8-30·0,37=18 кН·м. Опорные реакции при загружении по схеме рис. 2, а: -RA·2,4 + 15·3,13 + 21·2,59 + 21·2,02 + 30·1,37 + 30·0,5-30·0,37-6·0,8 + 3·4·3,3·1,65-3,4·0,9·0,45 + 3,4·1,64·0,82-3,4·0,64·0,32=0; RA=85 кН; -RB·2,4 + 21·0,38 +30·1,03 + 30·1,9 +30·2,77 + 6·3,2 + 3,4·2,28·2,06 + 3,4·3,3·1,65-3,4·0,9·0,45-15·0,73-21·0,19=0; RB=90 кН. Максимальная поперечная сила Q=90-3,4·0,9-3,4·0,64-6-30= 49 кН. Определяем усилия от расчетных горизонтальных технологических нагрузок при различных схемах загружения.
Рис. 3. К расчету траверсы на горизонтальные нагрузки Для схемы загружения по рис. 3, а. Опорная реакция RA=(9·0,5 + 9·1,37)/2,4=7 кН. Максимальный пролетный изгибающий момент Mx=7·1,03=7,2 кН·м. Максимальная поперечная сила Qx=RA=7 кН. Для схемы загружения по рис. 3, б. Максимальный изгибающий момент на опоре Mx=0,37 + 2·0,8=4,9 кН·м. Опорная реакция RB=(9·2,77 + 2·3,2)/2,4=13 кН. Максимальная поперечная сила Qx=9 + 2=11 кН. Для схемы загружения по рис. 3, в -RA·2,4 + 0,5·5·3,13 + 0,5·6·2,59 + 0,5·6·2,02 + 0,5·9·1,37 + 0,5·9·0,5-0,5·9·0,37-0,5·2·0,8=0; RA=11,5 кН. Максимальный изгибающий момент в пролете Mx=11,5·1,03-0,5·5·1,76-0,5·6·1,22-0,5·6·0,65=1,8 кН·м. Максимальная поперечная сила Qx=11,5-1-4,5=6 кН. Максимальный крутящий момент (схема загружения, рис. 3, б) при высоте сечения траверсы 500 мм T=0,5(2 + 9)/2=2,8 кН·м. На действие максимальных изгибающих моментов M=31,5 кН·м и Mx= =7,2 кН·м производится расчет продольной арматуры 4 диаметром 12 АIII на косой изгиб. На совместное действие максимальных поперечных сил на опоре Q=49 кН и Q=51 кН производится расчет траверсы по наклонному сечению с проверкой на действие крутящего момента T=2,8 кН·м и поперечной силы Q=49 кН. На действие изгибающего момента от вертикальных нагрузок М=31,5/1,1=28,6 кН·м (коэффициент надежности по нагрузке gf=1,1) производится расчет траверсы по деформациям и раскрытию трещин. Армирование траверсы показано на рис. 4, а.
Рис. 4. К расчету траверсы а - армирование траверсы; б - крепление траверсы к колонне Расчет крепления траверсы к колонне Двусторонний сварной угловой шов крепления траверсы к колонне опоры рассчитывается на совместное действие изгибающего момента М= 13·0,5=6,5 кН·м и горизонтальных сил Ру=1 кН и N=RB=13 кН (рис. 4, б) на срез по металлу шва и металлу границы сплавления. Расчет колонны опоры Расчетная схема колонны показана на рис. 5, а. Колонна сечением 400´ 400 мм выполнена из бетона класса В15. Начальный модуль упругости бетона Eb=25500 МПа. Момент инерции сечения относительно оси у I= (40·403)/12=213300 см4. Высота колонны l=550 см. Жесткость опоры на изгиб в направлении оси х (горизонтальная сила, приложенная к верху колонны и вызывающая его смещение на 1 см). В=2·3EbI/l3=2·3·2550·213300/5503=20<600 кН/см, т.е. расчет горизонтальной силы от технологической нагрузки трубопроводов следует производить с учетом коэффициентов неодновременности h по табл. 4. По табл. 4 при шести трубопроводах (трубопроводы тепловой сети № 5, 6 учитываются как один трубопровод) коэффициент h=0,2.
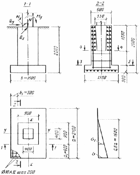
Рис. 5. К расчету колонны опоры Расчетная горизонтальная длительно действующая нагрузка, передающаяся с траверсы на наиболее нагруженную колонну, Рх=hSРxi=0,2(2 + 9 + 9 + 9 + 6 +5)=9,2 кН. Расчетная кратковременно действующая (ветровая) горизонтальная нагрузка Ру=1 кН. Расчетная вертикальная длительно действующая нагрузка (при подсчете снеговая нагрузка Р ввиду малости учтена как длительно действующая) P=RB=90 кН. Максимальный изгибающий момент от длительно действующей расчетной нагрузки по оси х в месте заделки колонны в фундамент Мх=9,2·5,5= =51 кН·м. Максимальный изгибающий момент от кратковременной нагрузки в месте заделки колонны Му=1(5,5 + 0,5)=6 кН·м. Расчетная продольная сила с учетом собственного веса колонны в месте ее заделки N=90 + 1,1·0,4·0,4·5,5·25=114 кН. Расчетные поперечные силы Qx=Px=9,2 кН; Qy=Py=1кН Расчетные длины колонны относительно осей х и у l0у= l0х=2l=2·5,5=11 м. Армирование колонны показано на рис. 5, б. По действующим усилиям Му=5 кН·м, Мх =51 кН·м и N=114 кН на косое внецентренное сжатие производится проверка несущей способности колонны. Расчет фундамента Расчетные нагрузки на уровне подколонника фундамента (рис. 6) Мх= 51 кН·м; Qx=9,2 кН; Му=6 кН·м; Qy=1 кН; N=114 кН.
Рис. 6. К расчету фундамента Расчетные нагрузки в уровне низа подошвы фундамента: Мх=51 +9,2·2 =69,4 кН·м; Му=6 + 1·2=8 кН·м; N=114 + 60=174 кН, где 60 кН - вес фундамента с грунтом на его обрезах. Расчет основания под фундаментом производится при коэффициенте надежности по нагрузке gf=1 и коэффициенте надежности по назначению gn=1. Нагрузки в уровне низа подошвы фундамента Mxn=69,4/1,1·1=63 кН·м; Myn=8/1,1·1=7 кН·м; Nn=174/1,1·1=158 кН. Принимаем размеры подошвы фундамента b´a=1,5´2,1 м. Площадь подошвы F=1,5·2,1=3,15 м2. Расчетное сопротивление грунта основания R=0,2 МПа. Моменты сопротивления для крайнего волокна относительно осей х и у; Wy=1,5·2,12/6=1,1 м3; Wх=2,1·1,52/6=0,8 м3. Напряжения по подошве фундамента sn=158/3,15=50 кН/м2<R=200 кН/м2; snmax=158/3,15 + 63/1,1 + 7/0,8=116 кН/м2<1,5R=1,5·200=300 кН/м2; snmin=158/3,15-63/1,1-7/0,8=-16 кН/м2<0, т.е. расчет напряжений по подошве фундамента следует производить с учетом отрыва подошвы. Эксцентриситеты ех=Mxn/Nn=63/158=0,4<0,23a=0,23·2,1=0,48 м; еy=Myn/ /Nn=7/158=0,04<0,23b=0,23·1,5=0,34 м. Наибольшее давление на грунт под подошвой sn =4Nn/3b(a-2emax)=4·158/3·1,5(2,1-2·0,4)=108<1,2R=1,2·200=240 кН/м2, т.е. размеры подошвы фундамента являются достаточными. Наибольшее давление на грунт под подошвой от расчетных нагрузок s=sn·1,15=108·1,15=124 кН/м2, s1=s-sa1/0,8a=124-124·0,6/1,68=80 кН/м2. Изгибающие моменты на всю ширину подошвы фундамента для сечений 1 и 2 от расчетной нагрузки М1=(s+s1)а21b/4=(124+80)0,62·1,5/4=27 кН·м; М2=s·0,8ab21/4=124·0,8·1,68·0,32/4=4 кН·м. Изгибающие моменты и продольные силы от расчетной нагрузки для сечений 3 и 4 M3x =51 + 9,2·1,7=67 кН·м; M3y =6 + 1·1,7=8 кН·м; N3=114 + 1,7·0,9·0,9·24·1,1=150 кН; М4х=51 + 9,2·1,05=61 кН·м; М4у=6 + 1·1,05=7 кН·м; N4=114 + 1,05·0,9·0,9·24·1,1=136 кН. На действие изгибающих М1=27 кН·м и М2=4 кН·м производится расчет продольной арматуры в сечениях 1 и 2 фундамента. На действие максимальная момента в уровне подошвы фундамента Мх=69,4 кН·м и продольной силы N3=150 кН производится проверка нижней ступени фундамента на продавливание подколонником. На действие M3x =67 кН·м; M3y =8 кН·м; N3=150 кН·м; М4х =61 кН·м; М4у=7 кН·м; N4=136 кН производится расчет сечений 3 и 4 подколонников на косое внецентренное сжатие. Расчет поперечной арматуры стакана производится по наклонному сечению на действие усилий Мх=51 кН·м; Qx =9,2 кН·м; N=114 кН. Пример 2. Определить расчетные нагрузки на конструкции анкерной промежуточной отдельно стоящей железобетонной опоры (рис. 1, опора № 2) под технологические трубопроводы. Характеристика трубопроводов приведена в табл. 1 и 2. Опорные части трубопроводов - неподвижные. Остальные исходные данные указаны в примере 1.
Таблица 2
* При П-образных компенсаторах нагрузка от внутреннего давления будет равна нулю.
РЕШЕНИЕ Так как шаг опор принят постоянным из расчета промежуточной опоры (см. пример 1), расчетная снеговая нагрузка рс=3,4 кН/м. Расчетная сосредоточенная ветровая нагрузка от трубопроводов на одну колонну Ру=1 кН. Вертикальная расчетная нагрузка от собственного веса трубопроводов с продуктом: Р1=6 кН; Р2=Р3=Р4=30 кН; Р5= Р6=21 кН; Р7=15 кН. Горизонтальная расчетная нагрузка от сил трения трубопроводов, расположенных на одной промежуточной опоре: Рх1=2 кН; Рх2= Рх3= Рх4=9 кН; Рх5= Рх6=6 кН; Рх7=5 кН. Расчетная нагрузка от собственного веса траверсы g=3,4 кН/м. Расчетная схема траверсы и схемы загружения для вычисления усилий от вертикальных нагрузок показаны на рис. 2. Максимальная опорная реакция RA =90 кН. Расчетные горизонтальные нагрузки от упругих реакций компенсаторов и внутреннего давления в трубопроводах (см. табл. 9) при коэффициенте надежности по нагрузке g1=1,1; Pkt1 =1,1·0,5=0,6 кН; Pkt2 =1,1·4,5=4,9 кН; Pkt3 =1,1·6=6,6 кН; Pkt4 =1,1·7,1=7,8 кН; Pkt5 =1,1·4=4,4 кН; Pkt6 =1,1·3,5=3,8 кН; Pkt7 =1,1·1=1,1 кН. Для промежуточной анкерной опоры, установленной в середине температурного блока, имеет место равенство противоположно направленных нагрузок, следовательно, горизонтальные технологические нагрузки должны быть умножены на коэффициент 0,2. Схемы загружения траверсы для вычисления усилий от расчетных горизонтальных технологических нагрузок показаны на рис. 7.
Рис. 7. К расчету траверсы анкерной опоры Расчетные горизонтальные нагрузки от упругих реакций компенсаторов и внутреннего давления в трубопроводах на траверсу опоры: Pk1 =0,6·0,2=0,1 кН; Pk2 =4,9·0,2=1 кН; Pk3 =6,6·0,2=1,3 кН; Pk4 =7,8·0,2=1,6 кН; Pk5=4,4·0,2=0,9 кН; Pk6 =3,8·0,2=0,8 кН; Pk7 =1,1·0,2=0,2 кН. Расчетная горизонтальная нагрузка от сил трения трубопроводов, расположенных по одну сторону от анкерной опоры: для схемы рис. 7, а Рх3=Рх4=0,2·0,3·42·1,1(2,2+0,05)=6,2 кН; для схемы рис. 7, б Рх2=0,2·0,3·42·1,1(2,2+0,05)=6,2 кН; Рх1=0,2·0,3·42·1,1(0,4+0,08)=1,3 кН; для схемы рис. 7, в Рх1=0,2·0,3·42·1,1·0,5(0,4 +0,08)=0,7 кН; Рх2=Рх3= =Рх4=0,2·0,3·42·1,1·0,5(2,2 + 0,05)=3,1 кН; Рх5=Рх6=0,2·0,3·42·1,1·0,5(1 +0,55)= =2,1 кН; Рх7=0,2·0,3·42·1,1·0,5(0,8 + 0,32)=1,6 кН. Максимальная опорная реакция от расчетных горизонтальных технологических нагрузок (схема рис. 7, б) -RB·2,4+0,1·3,2+1·2,77+1,3·1,9+1,6·1,03+0,9·0,38-0,8·0,19-0,2·0,73+1,3·3,2+6,2´2,77=0; RB =11,9 кН. От действия указанных выше нагрузок производится определение моментов и поперечных сил в траверсе. Так как опорная реакция от горизонтальной технологической нагрузки менее указанной выше реакции, вычисленной для промежуточной опоры (см. пример 1) 11,9<13 кН, то расчет наиболее нагруженной колонны и фундамента производится на действие горизонтальной технологической нагрузки Рх=13 кН. Расчетная схема и схема нагрузок колонн показана на рис. 8.
Рис. 8 Расчетная схема колонны анкерной опоры Пример 3. Рассчитать стальное пролетное строение двухъярусной эстакады комбинированной конструкции, представленной на рис. 9. Шаг траверс 6 м, шаг железобетонных опор 18 м. Размер температурного блока L= 18·6 +6 +6=120 м. Высота от планировочной отметки до нижнего яруса 6,6 м. Нормативная вертикальная нагрузка на эстакаду при отсутствии уточненной раскладки трубопроводов qn =20 кН/м. Нормативная ветровая нагрузка qnu =660 Па. Коэффициент надежности по назначению gn=0,95.
Рис. 9 Схема эстакады 1 - надколонники; 2 - траверсы; 3 - консоль фермы; 4 - вертикальные фермы; 5 - промежуточная железобетонная опора; 6 - ось температурного блока; 7 - связевая ферма; 8 - планировочная отметка земли
РЕШЕНИЕ Расчет рядовой траверсы Распределение нормативной вертикальной нагрузки от трубопроводов по ярусам эстакады: для верхнего яруса - 0,6qn=0,6·20=12 кН/м; для нижнего яруса - 0,4qn=0,4·20=8 кН/м. Расчетное значение интенсивности вертикальной нагрузки на единицу длины траверсы при шаге траверс а=6 м и длине траверсы b=6 м. Р=1,1 qna/b=1,1·12·6/6=13,2 кН/м, где 1,1 - коэффициент надежности по нагрузке. Расчетное значение интенсивности вертикальной нагрузки на нижний ярус траверсы Р=1,1·8·6/6=8,8 кН/м. Расчетные схемы и схемы нагрузок для траверсы верхнего яруса показаны на рис. 10.
Рис. 10 К расчету рядовой траверсы эстакады на вертикальные нагрузки а - консолей; б - пролета Определяем расчетные усилия в траверсе верхнего яруса. Максимальные моменты и поперечные силы на опоре (рис. 10, а) и в пролете (рис. 10, б) траверсы от вертикальной нагрузки: М0=15,8·1,22/2=11,4 кН·м; Q0=15,8·1,2=19 кН; Мр=13,2·3,62/8=21,4 кН·м; Qр =13,2·3,62/2=23,8 кН. Максимальные моменты и поперечные силы на опоре (рис. 11, а) и в пролете (рис. 11, б) траверсы от горизонтальной нагрузки: Мх0=4·1,22/2=2,9 кН·м; Qx0 =4·1,2=4,8 кН; Мхр=2·3,62/8=3,2 кН·м; Qxр =2·3,6/2=3,6 кН.
Рис. 11 К расчету рядовой траверсы на горизонтальные нагрузки а - консолей; б - пролета Принимаем сечение траверсы из гнутого замкнутого профиля Гн ÿ 140C4 по ТУ 36-2287¾80 из стали марки 14 Г2-6. Максимальные крутящие моменты на опоре и в пролете от горизонтальной нагрузки при высоте траверсы 140 мм: Т0=4·1,2·0,14/2=0,3 кН; Тр= =2·3,6·0,14/4=0,3 кН·м. Расчет сечения траверсы на прочность производится, как изгибаемого элемента в двух главных плоскостях на действие моментов: М=21,4 кН·м и Мх=3,2 кН·м. На действие максимальной поперечной силы Q=23,8 кН и крутящего момента Т=0,3 кН·м производится проверка сечения на сдвиг от суммарных касательных напряжений. От действия нормативной вертикальной нагрузки Pn =P/1,1=13,2/1,1=12 кН/м в пролете и Pn =15,8/1,1=14,4 кН/м на опоре производится проверка прогибов траверсы. Аналогично рассчитываются траверсы с неподвижным опиранием трубопроводов и траверсы нижнего яруса. Расчет связевой фермы Связевые фермы запроектированы по верхнему и нижнему ярусам эстакады (рис. 12). Пояса связевой фермы являются поясами двух вертикальных ферм пролетного строения. Элементы решетки связевой фермы С3 служат для уменьшения расчетных длин поясов вертикальных ферм и их работа не учитывается. Элементы С4 являются траверсами пролетного строения, элементы С1, С2 и С3 выполнены из одиночных уголковых профилей стали марки ВСт.3кп.2. Расчет связевой фермы выполнен как разрезной фермы. Работа сжатых раскосов фермы (на рис. 12, а показаны пунктиром) не учитывается.
Рис. 12 К расчету связевой фермы а - расчетная схема фермы; б - схема ветровой нагрузки; в - поперечное сечение раскоса; 1 - траверса Расчетная ветровая нагрузка на эстакаду для верхнего и нижнего ярусов при коэффициенте надежности по нагрузке 1,4, высоте ветровой полосы а=0,7 м, b=1 м, h=3,14 м и нормативной ветровой нагрузке qnw =600 Па будет qh =0,66·1,4(1+3,14/2)=2,4 кН/м; qu =0,66·1,4(0,7 +3,14/2)=2,1 кН/м. Сосредоточенная ветровая нагрузка, передающаяся на траверсы верхнего и нижнего ярусов: Wh =2·4·6=14,4 кН; Wu =2,1·6=12,6 кН. Опорные реакции ферм Rh =14,4+14,4/2=21,6 кН; Ru =12,6+12,6/2=18,9 кН. Усилия в стержнях связевых ферм от ветровой нагрузки для верхнего и нижнего ярусов приведены в табл. 3.
Таблица 3
По расчетным продольным силам, приведенным в табл. 3, производится расчет стержней С1 и С2 на прочность и устойчивость.
Расчетные длины стержней
Подбор сечений стержней С3 производится по предельной гибкости l=200. Расчетная длина стержня С3: lx =ly =3,6 м. Расчет вертикальной фермы промежуточного пролета Расчет фермы производится для наиболее нагруженного пролета, расположенного в середине температурного блока. Расчетная схема фермы показана на рис. 13.
Рис. 13 К расчету вертикальной фермы а - расчетная схемы фермы; б - сечение элементов Расчетные вертикальные нагрузки на одну ферму для верхнего и нижнего поясов: Р1=0,6·aq=0,6·0,6·20·1,1+0,6·1,3·1,05=8,8 кН/м; Р2=0,4·aq=0,4·0,6·20·1,1+0,4·1,3·1,05=5,8 кН/м, где a=0,6 - коэффициент распределения вертикальной нагрузки по поперечному сечению, трассы; 1,3 кН/м - нагрузка от собственного веса фермы, связей, траверсы; 1,05 - коэффициент надежности по нагрузке. Расчетные узловые нагрузки Р1=р1а=8,8·6=53 кН; Р2=р2а=5,8·6=35 кН. За счет неразрезности пролетного строения ферм на опоре промежуточного пролета от вертикальной нагрузки возникает момент М0=2(Р1 +Р2)L/9=2(53+35)18/9=352 кН·м. Разлагая момент М0 на пару сил, имеем Р3= М0/Н=352/3=117 кН. От сил трения трубопроводов верхних и нижних ярусов в поясах наиболее нагруженной фермы возникают усилия: Р4=±gqLi·0,6=0,09·20·1,1·57·0,6=±68 кН; Р5=±gqLi·0,4=0,09·20·1,1·57·0,4=±45 кН, где Li =120/2-3=57 м - расстояние от середины температурного блока до ближайшего конца эстакады; q=20·1,1 - расчетная нагрузка на 1 м длины трассы; g - коэффициент распределения горизонтальной нагрузки между фермами; 0,6 и 0,4 - коэффициенты распределения вертикальной нагрузки между ярусами эстакады. При отсутствии в температурном блоке эстакады анкерной опоры на пояса ферм будет передаваться расчетная горизонтальная технологическая нагрузка, приходящая на блок эстакады: Pxb =1,1·2·qn =1,1·2·20=44 кН; на верхний пояс P4'=0,6·0,5·a· Pxb =0,6·0,5·0,6·44= 8 кН; на нижний пояс P5"=0,4·0,5·a· Pxb =0,4·0,5·0,6·44= 6 кН; где 0,6 и 0,8 - коэффициенты распределения нагрузки по ярусам; 0,5 - коэффициент распределения нагрузки на ферму; a - коэффициент распределения нагрузки по поперечному сечению. Результаты определения усилий в стержнях фермы приведены в табл. 4. Таблица 4
| |||||||||||||||||||||||||||||||||||||||||||||||||||||||||||||||||||||||||||||||||||||||||||||||||||||||||||||||||||||||||||||||||||||||||||||||||||||||||||||||||||||||||||||||||||||||||||||||||||||||||||||||||||||||||||||||||||||||||||||||
Часть 1 | Часть 2 | Часть 3 | Часть 4 | Часть 5
Хотите оперативно узнавать о новых публикациях нормативных документов на портале? Подпишитесь на рассылку новостей!













