ГОСТ 7890-93 Краны мостовые однобалочные подвесные. Технические условия
ГОСТ 7890-93
МЕЖГОСУДАРСТВЕННЫЙ СТАНДАРТ
КРАНЫ МОСТОВЫЕ
ОДНОБАЛОЧНЫЕ ПОДВЕСНЫЕ
ТЕХНИЧЕСКИЕ УСЛОВИЯ
МЕЖГОСУДАРСТВЕННЫЙ СОВЕТ
ПО СТАНДАРТИЗАЦИИ, МЕТРОЛОГИИ И СТАНДАРТИЗАЦИИ
Минск
Предисловие
1 РАЗРАБОТАН Госстандартом России
ВНЕСЕН Техническим секретариатом Межгосударственного Совета по стандартизации, метрологии я сертификации
2 ПРИНЯТ Межгосударственным Советом по стандартизации, метрологии и сертификации 21 октября 1993 г.
За принятие проголосовали:
|
Наименование государства |
Наименование национального органа по стандартизации |
|
Республика Беларусь |
Белстандарт |
|
Республика Кыргызстан |
Кыргызстандарт |
|
Республика Молдова |
Молдовастандарт |
|
Российская Федерация |
Госстандарт России |
|
Республика Таджикистан |
Таджикстандарт |
|
Туркменистан |
Туркменглавгосинспекция |
3 ВВЕДЕН ВЗАМЕН ГОСТ 7890-84
МЕЖГОСУДАРСТВЕННЫЙ СТАНДАРТ
|
КРАНЫ МОСТОВЫЕ ОДНОБАЛОЧНЫЕ ПОДВЕСНЫЕ Технические условия Travelling
single girder suspended cranes. |
ГОСТ
|
Дата введения 1995-01-01
Настоящий стандарт распространяется на мостовые электрические однобалочные подвесные краны группы режима работы 3К с электрической талью и электрическим механизмом передвижения, управляемые с пола, грузоподъемностью от 1,0 до 10 т (далее - краны электрические), а также на краны мостовые ручные однобалочные подвесные блочно-модульной конструкции, унифицированные с электрическими, с ручным приводом механизма подъема и передвижения (далее - краны ручные), группы режима работы 1К, грузоподъемностью от 1 до 5 т.
Краны электрические и ручные должны изготавливаться в климатическом исполнении У, ТУ и t категорий размещения 2 и 3 по ГОСТ 15150 для эксплуатации при температуре от плюс 40 до минус 40°С или от плюс 40 до минус 20°С.
Стандарт устанавливает требования к кранам, изготавливаемым для нужд народного хозяйства и экспорта.
Стандарт не распространяется на краны, предназначенные для эксплуатации во взрывоопасных и пожароопасных средах, в помещениях с парами кислот и щелочей, концентрации которых вызывают разрушение электрической изоляции, для транспортирования расплавленного и раскаленного металла, ядовитых веществ.
Требования настоящего стандарта являются обязательными, кроме пп. 1.6, 1.8, 2.2.2, 2.2.3 и 2.8.
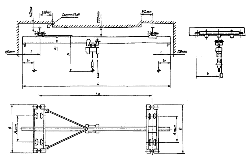
1. ТИПЫ, ОСНОВНЫЕ ПАРАМЕТРЫ И РАЗМЕРЫ
1.1. Электрические краны должны изготавливаться следующих типов: однопролетные и двухпролетные.
1.2. Основные параметры и размеры однопролетных электрических кранов должны соответствовать:
грузоподъемностью 1; 2; 3,2; 5 и 8 т указанным на черт. 1 и табл. 1-6;
грузоподъемностью 10 т - указанным на черт. 2 и табл. 7.
Основные параметры и размеры двухпролетных электрических кранов грузоподъемностью 1, 2; 3,2 и 5 т должны соответствовать указанным на черт. 3 и в табл. 8-12.
Основные параметры и размеры ручных кранов должны соответствовать указанным на черт. 4 и в табл. 13 и 14.
Размер В, указанный на черт. 1-4 и табл. 1-14, является габаритным размером крана вдоль пути.
Электрические краны грузоподъемностью 1; 2; 3,2 и 5 т выпускают высотой подъема 6; 12; 18; 24 и 36 м, грузоподъемностью 8 т - высотой подъема 12, 24 и 36 м, грузоподъемностью 10т - высотой подъема 18, 24 и 36 м.
Ручные краны грузоподъемностью 1; 2; 3,2 и 5 т выпускают высотой подъема 3, 6, 9 и 12 м.
1.3. Номинальная скорость передвижения электрических кранов - от 0,32 до 0,53 м/с.
Предельные отклонения фактических значений скоростей от номинальных должны быть следующими:
от 0,32 до 0,36 м/с - плюс 15 %;
св. 0,36 до 0,45 м/с - плюс, минус 10%;
св. 0,45 до 0,53 м/с - минус 15 %.
1.4. Значения конструктивной массы и нагрузки на путь электрических кранов грузоподъемностью 1; 2; 3,2 и 5 т и высотой подъема 6 м указаны в табл. 1-5 и 8-12, а для кранов высотой подъема 12, 18, 24 и 36 м указанные значения определяют умножением табличного значения на коэффициенты 1,03; 1,06; 1,09 и 1,15 соответственно.
Значения конструктивной массы и нагрузки на путь электрических кранов грузоподъемностью 8 т и высотой подъема 12 м указаны в табл. 6, а для высоты подъема 24 и 36 м указанные значения определяют умножением табличного значения на коэффициенты 1,07 и 1,1 соответственно.
Значения конструктивной массы и нагрузки на путь ручных кранов высотой подъема 3 м должны соответствовать табл. 13 и 14, а для кранов высотой подъема 6, 9 и 12 м указанные значения определяют умножением табличного значения на коэффициенты 1,02; 1,04 и 1,06 соответственно.
1.5. Электрические краны должны оснащаться электрическими талями, оборудованными концевыми выключателями высоты подъема, с номинальными значениями скоростей подъема - до 0,2 м/с, передвижения до 0,53 м/с. Предельные отклонения фактических скоростей от номинальных: подъема до 0,17 м/с - плюс, минус 15%; св. 0,17 до 0,2 м/с - минус 15%; передвижения до 0,45 м/с - плюс, минус 10 %; св. 0,45 до 0,53 м/с - минус 15 %.
Высота подъема талей - (6); 6,3; (12); 12,5; (18); 20; (24); (30); 32; (36) м (значения величин, указанные в скобках, применять не рекомендуется).
У электрических кранов грузоподъемностью 1; 2; 3,2; 5 т:
при высоте подъема 24 м размеры l1и l2 увеличиваются на 120 мм;
» » » 30 м » l1и l2 » на 240 мм;
» » » 36 м » l1и l2 » на 360 мм.
При этом масса крана увеличивается в соответствии с увеличением массы тали.
При изготовлении кранов с токоподводом тали на жесткой направляющей масса крана увеличивается до 10 % по сравнению с табличными значениями.
1.7. Ручные краны должны быть оборудованы ручными передвижными талями или ручными стационарными талями, снабженными механизмом передвижения и изготовленными по технической документации, разработанной и утвержденной в установленном порядке.
Черт. 1
Примечание. Черт. 1-4 не определяют конструкцию крана.
|
Грузоподъемность, т |
Размеры, мм |
|
|
l1 |
l2 |
|
|
1 |
660 |
660 |
|
2 |
710 |
710 |
|
3, 2 |
750 |
750 |
|
5 |
900 |
900 |
|
8 |
910 |
530 |
Таблица 1
Электрические краны однопролетные грузоподъемностью 1 т и высотой подъема 6 м
|
Полная длина L, м |
Пролет LП, м |
Длина консолей l, м |
Размеры, мм |
Номера профилей двутавровых балок для кранового пути по ГОСТ 19425 |
Нагрузка на путь, кН |
Конструктивная масса, т |
||||||
|
Amin |
B |
b |
h |
h1 |
от тележки |
от колеса |
||||||
|
не более |
не более |
|||||||||||
|
31 5723 1101 02 |
3,6 |
3,0 |
0,3 |
600 |
1260 |
630 |
1200 |
350 |
24 М; 30 М; 36 М |
7,2 |
3,60 |
0,63 |
|
31 5723 1102 01 |
4,2 |
0,6 |
||||||||||
|
31 5723 1103 00 |
4,8 |
4,2 |
0,3 |
|||||||||
|
31 5723 1104 10 |
5,4 |
0,6 |
||||||||||
|
31 5723 1105 09 |
6,6 |
6,0 |
0,3 |
1460 |
730 |
7,4 |
3,70 |
0,77 |
||||
|
31 5723 1106 08 |
7,2 |
0,6 |
||||||||||
|
31 5723 1107 07 |
7,8 |
0,9 |
||||||||||
|
31 5723 1109 05 |
10,2 |
9,0 |
0,6 |
7,8 |
3,90 |
0,91 |
||||||
|
31 5723 1111 00 |
10,8 |
0,9 |
||||||||||
|
31 5723 1112 10 |
11,4 |
1,2 |
||||||||||
|
31 5723 1113 09 |
12,0 |
1,5 |
||||||||||
|
31 5723 1114 08 |
13,2 |
112,0 |
0,6 |
1710 |
855 |
11280 |
430 |
8,5 |
4,25 |
1,21 |
||
|
31 5723 1115 07 |
13,8 |
0,9 |
||||||||||
|
31 5723 1116 06 |
14,4 |
1,2 |
||||||||||
|
31 5723 1117 05 |
15,0 |
1,5 |
||||||||||
|
31 5723 1118 04 |
16,2 |
15,0 |
0,6 |
1360 |
510 |
9,2 |
4,60 |
1,51 |
||||
|
31 5723 1119 03 |
16,8 |
0,9 |
||||||||||
|
31 5723 1121 09 |
17,4 |
1,2 |
||||||||||
|
31 5723 1122 08 |
18,0 |
1,5 |
||||||||||
Таблица 2
Электрические краны однопролетные грузоподъемностью 2 т и высотой подъема 6 м*
|
Код ОКП |
Полная длина L, м |
Пролет LП, м |
Длина консолей l, м |
Размеры, мм |
Номера профилей двутавровых балок для кранового пути по ГОСТ 19425 |
Нагрузка на путь, кН |
Конструктивная масса, т |
||||||
|
Amin |
B |
b |
h |
h1 |
от тележки |
от колеса |
|||||||
|
не более |
не более |
||||||||||||
|
31 5724 1101 08 |
3,6 |
3,0 |
0,3 |
600 |
1260 |
630 |
1580 |
430 |
24 М; 30 М; 36 М |
12,7 |
6,35 |
0,74 |
|
|
31 5724 1102 07 |
4,2 |
0,6 |
|||||||||||
|
31 5724 1103 06 |
4,8 |
4,2 |
0,3 |
||||||||||
|
31 5724 1104 05 |
5,4 |
0,6 |
|||||||||||
|
31 5724 1105 04 |
6,6 |
6,0 |
0,3 |
1460 |
730 |
||||||||
|
31 5724 1106 03 |
7,2 |
0,6 |
|||||||||||
|
31 5724 1107 02 |
7,8 |
0,9 |
|||||||||||
|
31 5724 1109 00 |
10,2 |
9,0 |
0,6 |
||||||||||
|
31 5724 1111 06 |
10,8 |
0,9 |
|||||||||||
|
31 5724 1112 05 |
11,4 |
1,2 |
|||||||||||
|
31 5724 1113 04 |
12,0 |
1,5 |
|||||||||||
|
31 5724 1114 03 |
13,2 |
12,0 |
0,6 |
1710 |
855 |
||||||||
|
31 5724 1115 02 |
13,8 |
0,9 |
|||||||||||
|
31 5724 1116 01 |
14,4 |
l.,2 |
|||||||||||
|
31 5724 1117 00 |
15,0 |
1,5 |
|||||||||||
|
31 5724 1118 10 |
16,2 |
15,0 |
0,6 |
||||||||||
|
31 5724 1119 09 |
16,8 |
0,9 |
|||||||||||
|
31 5724 1121 04 |
17,4 |
1,2 |
|||||||||||
|
31 5724 1122 03 |
18,0 |
1,5 |
|||||||||||
Таблица 3
Электрические краны однопролетные грузоподъемностью 3,2 т и высотой подъема 6 м
|
Код ОКП |
Полная длина L, м |
Пролет LП, м |
Длина консолей l, м |
Размеры, мм |
Номера профилей двутавровых балок для кранового пути по ГОСТ 19425 |
Нагрузка на путь, кН |
Конструктивная масса, т |
|||||
|
Amin |
B |
b |
h |
h1 |
от тележки |
от колеса |
||||||
|
не более |
не более |
|||||||||||
|
31 5725 1101 03 |
3,6 |
3,0 |
0,3 |
600 |
1260 |
630 |
1810 |
500 |
30 М; 36 М; 45 М |
19,8 |
9,90 |
1,02 |
|
31 5725 1102 02 |
4,2 |
0,6 |
||||||||||
|
31 5725 1103 01 |
4,8 |
4,2 |
0,3 |
|||||||||
|
31 5725 1104 00 |
5,4 |
0,6 |
||||||||||
|
31 5725 1105 10 |
6,6 |
6,0 |
0,3 |
1460 |
730 |
20,3 |
10,15 |
1,27 |
||||
|
31 5725 1106 09 |
7,2 |
0,6 |
||||||||||
|
31 5725 1107 08 |
7,8 |
0,9 |
||||||||||
|
31 5725 1109 06 |
10,2 |
9,0 |
0,6 |
1890 |
580 |
21,4 |
10,70 |
1,71 |
||||
|
31 5725 1111 01 |
10,8 |
0,9 |
||||||||||
|
31 5725 1112 00 |
11,4 |
1,2 |
||||||||||
|
31 5725 1113 10 |
12,0 |
1,5 |
||||||||||
|
31 5725 1114 09 |
13,2 |
12,0 |
0,6 |
1710 |
855 |
2010 |
700 |
22,0 |
11,00 |
1,91 |
||
|
31 5725 1115 08 |
13,8 |
0,9 |
||||||||||
|
31 5725 1116 07 |
14,4 |
1,2 |
||||||||||
|
31 5725 1117 06 |
15,0 |
15,0 |
1,5 |
|||||||||
|
31 5725 1118 05 |
16,2 |
0,6 |
23,4 |
11,70 |
2,48 |
|||||||
|
31 5725 1119 04 |
16,8 |
0,9 |
||||||||||
|
31 5725 1121 10 |
17,4 |
1,2 |
||||||||||
|
31 5725 1122 09 |
18,0 |
1,5 |
||||||||||
Таблица 4
Электрические краны однопролетные грузоподъемностью 3,2 т и высотой подъема 6 м, блочно-модульной конструкции
|
Код ОКП |
Полная длина L, м |
Пролет LП, м |
Длина консолей l, м |
Размеры, мм |
Номера профилей двутавровых балок для кранового пути по ГОСТ 19425 |
Нагрузка на путь, кН |
Конструктивная масса, т |
|
|||||
|
Amin |
B |
b |
h |
h1 |
от тележки |
от колеса |
|
||||||
|
не более |
не более |
|
|||||||||||
|
31 5725 1201 00 |
3,6 |
3,0 |
0,3 |
1050 |
1840 |
950 |
1810 |
500 |
30 М; 36 М; 45 М |
15,8 |
7,90 |
1,12 |
|
|
31 5725 1202 10 |
4,2 |
0,6 |
|
||||||||||
|
31 5725 1203 09 |
4,8 |
4,2 |
0,3 |
|
|||||||||
|
31 5725 1204 08 |
5,4 |
0,6 |
|
||||||||||
|
31 5725 1205 07 |
6,6 |
6,0 |
0,3 |
2100 |
|||||||||
|
16,3 |
8,15 |
1,36 |
|||||||||||
|
31 5725 1206 06 |
7,2 |
0,6 |
|
||||||||||
|
31 5725 1207 05 |
7,8 |
0,9 |
|
||||||||||
|
1,2 |
|
||||||||||||
|
31 5725 1209 03 |
10,2 |
9,0 |
0,6 |
1890 |
580 |
17,10 |
8,55 |
1,79 |
|
||||
|
31 5725 1211 09 |
10,8 |
0,9 |
|
||||||||||
|
31 5725 1212 08 |
11,4 |
1,2 |
|
||||||||||
|
31 5725 1213 07 |
12,0 |
1,5 |
|||||||||||
|
31 5725 1214 06 |
13,2 |
12,0 |
0,6 |
2010 |
700 |
17,6 |
8,80 |
2,03 |
|
||||
|
31 5725 1215 05 |
13,8 |
0,9 |
|
||||||||||
|
31 5725 1216 04 |
14,4 |
1,2 |
|
||||||||||
|
31 5725 1217 03 |
15,0 |
1,5 |
|
||||||||||
|
31 5725 1218 02 |
16,2 |
15,0 |
0,6 |
||||||||||
|
31 5725 1219 01 |
16,8 |
0,9 |
|
||||||||||
|
31 5725 1221 07 |
17,4 |
1,2 |
|
||||||||||
|
31 5725 1222 06 |
18,0 |
1,5 |
|
||||||||||
Таблица 5
Электрические краны однопролетные грузоподъемностью 5 т и высотой подъема 6 м
|
Полная длина L, м |
Пролет LП, м |
Длина консолей l, м |
Размеры, мм |
Номера профилей двутавровых балок для кранового пути по ГОСТ 19425 |
Нагрузка на путь, кН |
Конструктивная масса, т |
|||||||
|
Amin |
B |
b |
h |
h1 |
от тележки |
от колеса |
|||||||
|
не более |
не более |
||||||||||||
|
31 5726 1101 09 |
3,6 |
3,0 |
0,3 |
900 |
1860 |
930 |
2040 |
530 |
30 М; 36 М; 45 М |
15,7 |
7,85 |
1,75 |
|
|
31 5726 1102 08 |
4,2 |
0,6 |
|||||||||||
|
31 5726 1103 07 |
4,8 |
4,2 |
0,3 |
2120 |
600 |
||||||||
|
31 5726 1104 06 |
5,4 |
0,6 |
|||||||||||
|
31 5726 1105 05 |
6,6 |
6,0 |
0,3 |
2100 |
1050 |
16,4 |
8,20 |
2,06 |
|||||
|
31 5726 1106 04 |
7,2 |
0,6 |
|||||||||||
|
31 5726 1107 03 |
7,8 |
0,9 |
|||||||||||
|
31 5726 1109 01 |
10,2 |
9,0 |
0,6 |
2240 |
720 |
16,9 |
8,45 |
2,41 |
|||||
|
31 5726 1111 07 |
10,8 |
0,9 |
|||||||||||
|
31 5726 1112 06 |
11,4 |
1,2 |
|||||||||||
|
31 5726 1113 05 |
12,0 |
1,5 |
|||||||||||
|
31 5726 1114 04 |
13,2 |
12,0 |
0,6 |
17,4 |
8,70 |
2,81 |
|||||||
|
31 5726 1115 03 |
13,8 |
0,9 |
|||||||||||
|
31 5726 1116 02 |
14,4 |
1,2 |
|||||||||||
|
31 5726 1117 01 |
15,0 |
1,5 |
|||||||||||
|
31 5726 1118 00 |
16,2 |
15,0 |
0,6 |
17,9 |
8,95 |
3,28 |
|||||||
|
31 5726 1119 10 |
16,8 |
0,9 |
|||||||||||
|
31 5726 1121 05 |
17,4 |
1,2 |
|||||||||||
|
31 5726 1122 04 |
18,0 |
1,5 |
|||||||||||
Таблица 6
Электрические краны однопролетные грузоподъемностью 8 т и высотой подъема 12 м
|
Полная длина L, м |
Пролет LП, м |
Длина консолей l, м |
Размеры, мм |
Номера профилей двутавровых балок для кранового пути по ГОСТ 19425 |
Нагрузка на путь, кН |
Конструктивная масса, т |
||||||
|
Amin |
B |
b |
h |
h1 |
от тележки |
от колеса |
||||||
|
не более |
не более |
|||||||||||
|
31 5728 1101 10 |
3,6 |
3,0 |
0,3 |
900 |
1840 |
920 |
2350 |
670 |
45 М |
36,0 |
9,00 |
2,30 |
|
4,2 |
0,6 |
|||||||||||
|
31 5728 1103 08 |
4,8 |
4,2 |
0,3 |
42,4 |
10,60 |
2,50 |
||||||
|
5,4 |
0,6 |
|||||||||||
|
31 5728 1106 05 |
6,6 |
6,0 |
0,3 |
50,4 |
12,30 |
2,90 |
||||||
|
31 5728 1108 03 |
7,2 |
0,6 |
||||||||||
|
31 5728 1111 08 |
7,8 |
0,9 |
||||||||||
|
31 5728 1113 06 |
8,4 |
1,2 |
||||||||||
|
31 5728 1117 02 |
9,6 |
9,0 |
0,3 |
52,0 |
13,00 |
3,30 |
||||||
|
31 5728 1119 00 |
10,2 |
0,6 |
||||||||||
|
31 5728 1121 06 |
10,8 |
0,9 |
||||||||||
|
31 5728 1122 05 |
11,4 |
1,2 |
||||||||||
|
31 5728 1167 03 |
12,0 |
1,5 |
||||||||||
Черт. 2
Таблица 7
Электрические краны однопролетные грузоподъемностью 10 т
|
Высота подъема Н, м |
Полная длина L, м |
Пролет LП, м |
Длина консолей 1, м |
Размеры, мм |
Крановый путь |
Нагрузка на путь, кН |
Конструктивная масса, т |
|||||||
|
Аmin |
B |
b |
h |
h1 |
от тележки |
от колеса |
||||||||
|
не более |
не более |
|||||||||||||
|
31 5727 1121 01 |
19 |
4,8 |
3,0 |
0,9 |
2200 |
2900 |
1450 |
2360 |
530 |
На базе двутавра №45 М по ГОСТ 19425 |
75,6 |
18,9 |
4,8 |
|
|
31 5727 1122 10 |
6,0 |
4,2 |
||||||||||||
|
31 5727 1124 08 |
7,8 |
6,0 |
79,6 |
19,9 |
5,0 |
|||||||||
|
8,4 |
12 |
|||||||||||||
|
31 5727 1125 07 |
11,4 |
9,0 |
82,8 |
20,7 |
5,7 |
|||||||||
|
12,0 |
1,5 |
|||||||||||||
|
31 5727 1107 09 |
24 |
4,8 |
3,0 |
0,9 |
77,2 |
19,3 |
4,9 |
|||||||
|
31 5727 1108 08 |
6,0 |
4,2 |
||||||||||||
|
31 5727 1111 02 |
7,8 |
6,0 |
81,2 |
20,3 |
5,1 |
|||||||||
|
8,4 |
1,2 |
|||||||||||||
|
31 5727 1128 04 |
11,4 |
9,0 |
84,4 |
21,1 |
5,8 |
|||||||||
|
12,0 |
1,5 |
|||||||||||||
|
31 5727 1114 10 |
36 |
4,8 |
3,0 |
0,9 |
81,6 |
20,4 |
5,1 |
|||||||
|
31 5727 1115 09 |
6,0 |
4,2 |
||||||||||||
|
31 5727 1117 07 |
7,8 |
6,0 |
86,0 |
21,5 |
5,3 |
|||||||||
|
8,4 |
1,2 |
|||||||||||||
|
31 5727 1129 03 |
11,4 |
9,0 |
89,6 |
22,4 |
6,0 |
|||||||||
|
12,0 |
1,5 |
|||||||||||||

Черт. 3
|
Грузоподъемность, т |
Размеры, мм |
|
|
l1 |
l2 |
|
|
1 |
660 |
|
|
2 |
710 |
|
|
3, 2 |
750 |
|
|
5 |
900 |
|
Таблица 8
Электрические краны двухпролетные грузоподъемностью 1 т и высотой подъема 6 м
|
Полная длина L, м |
Пролет LП, м |
Длина консолей l, м |
Размеры, мм |
Номера профилей двутавровых балок для кранового пути по ГОСТ 19425 |
Нагрузка на путь, кН |
Конструктивная масса, т |
||||||
|
Amin |
B |
b |
h |
h1 |
от тележки |
от колеса |
||||||
|
не более |
не более |
|||||||||||
|
31 5723 2101 09 |
16,2 |
7,5+7,5 |
0,6 |
600 |
1460 |
730 |
1200 |
350 |
24 М; 30 М; 36 М |
8,0 |
4,00 |
1,25 |
|
31 5723 2102 08 |
16,8 |
0,9 |
||||||||||
|
31 5723 2103 07 |
17,4 |
1,2 |
||||||||||
|
31 5723 2104 06 |
19,2 |
9,0+9,0 |
0,6 |
8,7 |
4,35 |
1,66 |
||||||
|
31 5723 2105 05 |
19,8 |
0,9 |
||||||||||
|
31 5723 2106 04 |
20,4 |
1,2 |
||||||||||
|
31 5723 2107 03 |
21,0 |
1,5 |
||||||||||
|
31 5723 2108 02 |
22,2 |
10,5+10,5 |
0,6 |
1280 |
430 |
8,9 |
4,45 |
1,81 |
||||
|
31 5723 2109 01 |
22,8 |
0,9 |
||||||||||
|
31 5723 2111 07 |
23,4 |
1,2 |
||||||||||
|
31 5723 2112 06 |
24,0 |
1,5 |
||||||||||
|
31 5723 2113 05 |
25,2 |
12,0+12,0 |
0,6 |
17,10 |
855 |
1360 |
510 |
9,6 |
4,80 |
2,18 |
||
|
31 5723 2114 04 |
25,8 |
0,9 |
||||||||||
|
31 5723 3115 03 |
26,4 |
1,2 |
||||||||||
|
31 5723 2116 02 |
27,0 |
1,5 |
||||||||||
Таблица 9
Электрические краны двухпролетные грузоподъемностью 2 т и высотой подъема 6 м
|
Код ОКП |
Полная длина L, м |
Пролет LП, м |
Длина консолей l, м |
Размеры, мм |
Номера профилей двутавровых балок для кранового пути по ГОСТ 19425 |
Нагрузка на путь, кН |
Конструктивная масса, т |
|||||
|
Amin |
B |
b |
h |
h1 |
от тележки |
от колеса |
||||||
|
|
не более |
не более |
||||||||||
|
31 5724 2101 04 |
16,2 |
7,5+7,5 |
0,6 |
600 |
1460 |
730 |
1580 |
430 |
24 М; 30 М; 36 М |
14,2 |
7,10 |
1,70 |
|
31 5724 2102 03 |
16,8 |
0,9 |
||||||||||
|
31 5724 2103 02 |
17,4 |
1,2 |
||||||||||
|
31 5724 2104 01 |
19,2 |
9,0+9,0 |
0,6 |
14,8 |
7,40 |
2,08 |
||||||
|
31 5724 2105 00 |
19,8 |
0,9 |
||||||||||
|
31 5724 2106 10 |
20,4 |
1,2 |
||||||||||
|
31 5724 2107 09 |
21,0 |
1,5 |
||||||||||
|
31 5724 2108 08 |
22,2 |
10,5+10,5 |
0,6 |
15,1 |
7,55 |
2,26 |
||||||
|
31 5724 2109 07 |
22,8 |
0,9 |
||||||||||
|
31 5724 2111 02 |
23,4 |
1,2 |
||||||||||
|
31 5724 2112 01 |
24,0 |
1,5 |
||||||||||
|
31 5724 2113 00 |
25,2 |
12,0+12,0 |
0,6 |
1710 |
855 |
1660 |
510 |
15,4 |
7,70 |
2,46 |
||
|
31 5724 2114 10 |
25,8 |
0,9 |
||||||||||
|
31 5724 2115 09 |
26,4 |
1,2 |
||||||||||
|
31 5724 2116 08 |
27,0 |
1,5 |
||||||||||
Таблица 10
Электрические краны двухпролетные грузоподъемностью 3,2 т и высотой подъема 6 м
|
Код ОКП |
Полная длина L, м |
Пролет LП, м |
Длина консолей l, м |
Размеры, мм |
Номера профилей двутавровых балок для кранового пути по ГОСТ 19425 |
Нагрузка на путь, кН |
Конструктивная масса, т |
|||||
|
Amin |
B |
b |
h |
h1 |
от тележки |
от колеса |
||||||
|
|
не более |
не более |
||||||||||
|
31 5725 2101 10 |
16,2 |
7,5+7,5 |
0,6 |
600 |
1460 |
730 |
1810 |
500 |
30 М; 36 М; 45 М |
21,8 |
10,90 |
1,99 |
|
31 5725 2102 09 |
16,8 |
0,9 |
||||||||||
|
31 5725 2103 08 |
17,4 |
1,2 |
||||||||||
|
31 5725 2104 07 |
19,2 |
9,0+9,0 |
0,6 |
1890 |
580 |
22,8 |
11,40 |
2,66 |
||||
|
31 5725 2105 06 |
19,8 |
0,9 |
||||||||||
|
31 5725 2106 05 |
20,4 |
0,2 |
||||||||||
|
31 5725 2107 04 |
21,0 |
1,5 |
||||||||||
|
31 5725 2108 03 |
22,2 |
10,5+10,5 |
0,6 |
23,2 |
11,60 |
2,85 |
||||||
|
31 5725 2109 02 |
22,8 |
0,9 |
||||||||||
|
31 5725 2111 08 |
23,4 |
1,2 |
||||||||||
|
31 5725 2112 07 |
24,0 |
1,5 |
||||||||||
|
31 5725 2113 06 |
25,2 |
12,0+12,0 |
0,6 |
1710 |
855 |
2010 |
700 |
23,6 |
11,80 |
3,10 |
||
|
31 5725 2114 05 |
25,8 |
0,9 |
||||||||||
|
31 5725 2115 04 |
26,4 |
1,2 |
||||||||||
|
31 5725 2116 03 |
27,0 |
1,5 |
||||||||||
Таблица 11
Электрические краны двухпролетные грузоподъемностью 3,2 т и высотой подъема 6 м, блочно-модульной конструкции
|
Код ОКП |
Полная длина L, м |
Пролет LП, м |
Длина консолей l, м |
Размеры, мм |
Номера профилей двутавровых балок для кранового пути по ГОСТ 19425 |
Нагрузка на путь, кН |
Конструктивная масса, т |
|||||
|
Amin |
B |
b |
h |
h1 |
от тележки |
от колеса |
||||||
|
не более |
не более |
|||||||||||
|
31 5725 2201 08 |
16,2 |
7,5+7,5 |
0,6 |
1050 |
2100 |
950 |
1810 |
500 |
30 М; 36 М; 45 М |
17,4 |
8,70 |
2,11 |
|
31 5725 2202 07 |
16,8 |
0,9 |
||||||||||
|
31 5725 2203 06 |
17,4 |
1,2 |
||||||||||
|
31 5725 2204 05 |
19,2 |
9,0+9,0 |
0,6 |
1890 |
580 |
18,3 |
9,15 |
2,78 |
||||
|
31 5725 2205 04 |
19,8 |
0,9 |
||||||||||
|
31 5725 2206 03 |
20,4 |
1,2 |
||||||||||
|
31 5725 2207 02 |
21,0 |
1,5 |
||||||||||
|
31 5725 2208 01 |
22,2 |
10,5+10,5 |
0,6 |
18,6 |
9,30 |
2,99 |
||||||
|
31 5725 2209 00 |
22,8 |
0,9 |
||||||||||
|
31 5725 2211 05 |
23,4 |
1,2 |
||||||||||
|
31 5725 2212 04 |
24,0 |
1,5 |
||||||||||
|
31 5725 2213 03 |
25,2 |
12,0+12,0 |
0,6 |
2010 |
700 |
18,9 |
9,45 |
3,27 |
||||
|
31 5725 2214 02 |
25,8 |
0,9 |
||||||||||
|
31 5725 2215 01 |
26,4 |
1,2 |
||||||||||
|
31 5725 2216 00 |
27,0 |
1,5 |
||||||||||
Таблица 12
Электрические краны двухпролетные грузоподъемностью 6 т и высотой подъема 6 м
|
Полная длина L, м |
Пролет LП, м |
Длина консолей l, м |
Размеры, мм |
Номера профилей двутавровых балок для кранового пути по ГОСТ 19425 |
Нагрузка на путь, кН |
Конструктивная масса, т |
||||||
|
Amin |
B |
b |
h |
h1 |
от тележки |
от колеса |
||||||
|
не более |
не более |
|||||||||||
|
31 5726 2101 05 |
16,2 |
7,5+7,5 |
0,6 |
900 |
2100 |
1050 |
2120 |
600 |
30 М; 36 М; 45 М |
16,8 |
8,40 |
3,07 |
|
31 5726 2102 04 |
16,8 |
0,9 |
||||||||||
|
31 5726 2103 03 |
17,4 |
1,2 |
||||||||||
|
31 5726 2104 02 |
19,2 |
9,0+9,0 |
0,6 |
17,2 |
8,60 |
3,56 |
||||||
|
31 5726 2105 01 |
19,8 |
0,9 |
||||||||||
|
31 5726 2106 00 |
20,4 |
1,2 |
||||||||||
|
31 5726 2107 10 |
21,0 |
1,5 |
||||||||||
|
31 5726 2108 09 |
22,2 |
10,5+10,5 |
0,6 |
17,4 |
8,70 |
3,80 |
||||||
|
31 5726 2109 08 |
22,8 |
0,9 |
||||||||||
|
31 5726 2111 03 |
23,4 |
1,2 |
||||||||||
|
31 5726 2112 02 |
24,0 |
1,5 |
||||||||||
|
31 5726 2113 01 |
25,2 |
12,0+12,0 |
0,6 |
2240 |
720 |
17,8 |
8,90 |
4,30 |
||||
|
31 5726 2114 00 |
25,8 |
0,9 |
||||||||||
|
31 5726 2115 10 |
26,4 |
1,2 |
||||||||||
|
31 5726 2116 09 |
27,0 |
1,5 |
||||||||||
Черт. 4
|
Грузоподъемность, т |
Размеры, мм |
|
|
l1 |
l2 |
|
|
1 |
150 |
|
|
2 |
200 |
|
|
3, 2 |
200 |
|
|
5 |
220 |
|
Таблица 13
Краны ручные грузоподъемностью 1 и 2 т и высотой подъема 3 м, блочно-модульной конструкции
|
Грузоподъемность, т |
Полная длина L, м |
Пролет LП, м |
Длина консолей l, м |
Размеры, мм |
Номера профилей двутавровых балок для кранового пути по ГОСТ 19425 |
Нагрузка на путь, кН |
Конструктивная масса, т |
||||||
|
Amin |
B |
b |
h |
h1 |
от тележки |
от колеса |
|||||||
|
не более |
не более |
||||||||||||
|
31 5911 2154 09 |
1,0 |
3,6 |
3,0 |
0,3 |
600 |
1260 |
630 |
660 |
260 |
24 М; 30 М; 36 М |
6,7 |
3,35 |
0,31 |
|
31 5911 2155 08 |
4,2 |
6,6 |
|||||||||||
|
31 5911 2156 07 |
4,8 |
4,2 |
0,3 |
0,34 |
|||||||||
|
31 5911 2157 06 |
5,4 |
0,6 |
1460 |
730 |
|||||||||
|
31 5911 2158 05 |
6,6 |
6,0 |
0,3 |
0,40 |
|||||||||
|
31 5911 2159 04 |
7,2 |
0,6 |
|||||||||||
|
31 5911 2161 10 |
8,1 |
7,5 |
0,3 |
6,9 |
3,45 |
0,49 |
|||||||
|
31 5911 2162 09 |
8,7 |
0,6 |
|||||||||||
|
31 5911 2163 08 |
9,3 |
0,9 |
|||||||||||
|
31 5911 2164 07 |
10,2 |
9,0 |
0,6 |
760 |
360 |
7,2 |
3,60 |
0,54 |
|||||
|
31 5911 2165 06 |
10,8 |
0,9 |
|||||||||||
|
31 5911 2166 05 |
11,4 |
1,2 |
|||||||||||
|
31 5911 3154 05 |
2,0 |
3,6 |
3,0 |
0,3 |
600 |
1260 |
630 |
890 |
280 |
24 М; 30 М; 36 М |
11,2 |
5,60 |
0,41 |
|
31 5911 3155 04 |
4,2 |
0,6 |
|||||||||||
|
31 5911 3156 03 |
4,8 |
4,2 |
0,3 |
11,4 |
5,70 |
0,46 |
|||||||
|
31 5911 3157 02 |
5,4 |
0,6 |
|||||||||||
|
31 5911 3158 01 |
6,6 |
6,0 |
0,3 |
1460 |
730 |
970 |
360 |
11,6 |
5,80 |
0,54 |
|||
|
31 5911 3159 00 |
7,2 |
0,6 |
|||||||||||
|
31 5911 3161 06 |
8,1 |
7,5 |
0,3 |
11,9 |
5,95 |
0,64 |
|||||||
|
31 5911 3162 05 |
8,7 |
0,6 |
|||||||||||
|
31 5911 3163 04 |
9,3 |
0,9 |
|||||||||||
|
31 5911 3164 03 |
10,3 |
9,0 |
0,6 |
12,2 |
6,10 |
0,73 |
|||||||
|
31 5911 3165 02 |
10,8 |
0,9 |
|||||||||||
|
31 5911 3166 01 |
11,4 |
1,2 |
|||||||||||
Таблица 14
Краны ручные грузоподъемностью 3,2 и 5 т и высотой подъема 3 м, блочно-модульной конструкции
|
Грузоподъемность, т |
Полная длина L, м |
Пролет LП, м |
Длина консолей l, м |
Размеры, мм |
Номера профилей двутавровых балок для кранового пути по ГОСТ 19425 |
Нагрузка на путь, кН |
Конструктивная масса, т |
||||||
|
Amin |
B |
b |
h |
h1 |
от тележки |
от колеса |
|||||||
|
не более |
не более |
||||||||||||
|
31 5911 4154 01 |
3,2 |
3,6 |
3,0 |
0,3 |
600 |
1260 |
630 |
930 |
280 |
30 М; 36 М; 45 М |
19,7 |
9,85 |
0,44 |
|
31 5911 4155 00 |
4,2 |
|
0,6 |
||||||||||
|
31 5911 4156 10 |
4,8 |
4,2 |
0,3 |
19,1 |
9,55 |
0,50 |
|||||||
|
31 5911 4157 09 |
5,4 |
|
0,6 |
||||||||||
|
31 5911 4158 08 |
6,6 |
6,0 |
0,3 |
1460 |
730 |
0,61 |
|||||||
|
31 5911 4159 07 |
7,2 |
0,6 |
|||||||||||
|
31 5911 4161 02 |
8,1 |
7,5 |
0,3 |
1050 |
400 |
19,7 |
9,85 |
0,75 |
|||||
|
31 5911 4162 01 |
8,7 |
0,6 |
|||||||||||
|
31 5911 4163 00 |
9,3 |
0,9 |
|||||||||||
|
31 5911 4164 10 |
10,2 |
9,0 |
0,6 |
20,3 |
10,15 |
0,87 |
|||||||
|
31 5911 4165 09 |
10,8 |
0,9 |
|||||||||||
|
31 5911 4166 08 |
11,4 |
1,2 |
|||||||||||
|
31 5911 5152 10 |
5,0 |
3,6 |
3,0 |
0,3 |
1050 |
1860 |
960 |
1100 |
340 |
30 М; 36 М; 45 М |
26,5 |
13,25 |
0,74 |
|
31 5911 5153 09 |
4,2 |
0,6 |
|||||||||||
|
31 5911 5154 08 |
4,8 |
4,2 |
0,3 |
26,7 |
13,35 |
0,82 |
|||||||
|
31 5911 5155 07 |
5,4 |
0,6 |
|||||||||||
|
31 5911 5156 06 |
6,6 |
6,0 |
0,3 |
2100 |
1080 |
27,1 |
13,55 |
0,90 |
|||||
|
31 5911 5157 05 |
7,2 |
0,6 |
|||||||||||
|
31 5911 5158 04 |
8,1 |
7,5 |
0,3 |
1220 |
460 |
27,5 |
13,75 |
1,06 |
|||||
|
31 5911 5159 03 |
8,7 |
0,6 |
|||||||||||
|
31 5911 5161 09 |
9,3 |
0,9 |
|||||||||||
|
31 5911 5162 08 |
10,3 |
9,0 |
0,6 |
1280 |
520 |
27,9 |
13,95 |
1,23 |
|||||
|
31 5911 5163 07 |
10,8 |
0,9 |
|||||||||||
Пример условного обозначения однопролетного электрического крана грузоподъемностью 2 т, длиной 12 м, пролетом 9 м, высотой подъема 18 м, напряжением трехфазного тока 220 В, исполнения У, для категории размещения 3:
Кран электрический подвесной однопролетный:
2-12-9-18-220-УЗ ГОСТ 7890-93
То же, блочно-модульной конструкции грузоподъемностью 3,2 м длиной 12 м, пролетом 9 м, высотой подъема 18 м, напряжением трехфазного тока 220 В, исполнения У для категории размещения 3:
Кран электрический подвесной однопролетный блочно-модульной конструкции
3,2-12-9-18-220 УЗ БМК ГОСТ 7890-93
Пример условного обозначения двухпролетного электрического крана грузоподъемностью 5 т, длиной 22,8 м, пролетами 10,5+10,5 м, высотой подъема 12 м, напряжением трехфазного тока 380 В, исполнения Т, категории размещения 2:
Кран электрический подвесной двухпролетный
5-22,8-(10,5+10,5)-12-380-Т2 ГОСТ 7890-93
Пример условного обозначения ручного подвесного крана грузоподъемностью 3,2 т, длиной 10,8 м, пролетом 9 м, высотой подъема 3 м, исполнения У, категории размещения 2:
Кран ручной подвесной
3,2-10,8-9-3-У2 ГОСТ 7890-93
2. ТЕХНИЧЕСКИЕ ТРЕБОВАНИЯ
2.1.1. Краны должны изготавливаться по нормативно-технической документации и рабочим чертежам, утвержденным в установленном порядке в соответствии с требованиями настоящего стандарта, «Правилами устройства и безопасной эксплуатации грузоподъемных кранов», утвержденными Госгортехнадзором СССР, «Правилами устройства электроустановок», утвержденными Министерством энергетики и электрификации СССР.
Краны, предназначенные для экспорта, должны соответствовать условиям контракта между изготовителем и иностранным заказчиком, а для районов с тропическим климатом - ГОСТ 15151.
Комплектующие изделия должны быть изготовлены в том же климатическом исполнении, в каком изготавливается кран, если иное не указано в контракте.
2.1.2. Краны электрические должны работать на трехфазном токе напряжением 220, 240, 380, 400, 415 В частотой 50 Гц.
Допускается работа электрических кранов на трехфазном токе напряжением 220, 380, 400, 440 В частотой 60 Гц.
2.2. Требования к конструкции крана
2.2.4. Механизмы и металлоконструкции кранов должны состоять из транспортабельных узлов, обеспечивающих их сборку на месте монтажа.
2.2.5. Токоподвод к электрическим кранам и электрическим талям должен осуществляться с помощью токоприемников или гибкого кабеля.
2.2.6. Суммарное тяговое усилие на цепи механизма передвижения ручного крана должно быть для кранов грузоподъемностью 1т - не более 100 Н, грузоподъемностью 2т - не более 120 Н, грузоподъемностью 3,2 т - не более 150 Н, грузоподъемностью 5т - не более 190 Н.
2.2.7. По согласованию с заказчиком пролетная балка крана может быть изготовлена из двух частей с последующей их сваркой встык на месте монтажа. При этом общее количество стыков должно соответствовать п. 2.4.4 настоящего стандарта. Подготовка поверхностей и разделка кромок для сварных швов должна выполняться изготовителем, а сварные швы с последующей зачисткой должны выполняться по документации изготовителя крана в соответствии с требованиями «Правил устройства и безопасной эксплуатации грузоподъемных кранов».
Контроль качества сварных швов следует проводить радиографическим методом в соответствии с ОСТ 24.090.63. Кривизна пролетной балки после сварки и последующей правки должна удовлетворять требованиям п. 2.4.2 настоящего стандарта.
2.3. Требования к материалам
2.3.1. Несущие элементы металлоконструкций кранов должны быть изготовлены из сталей с механическими свойствами, в том числе и ударной вязкостью, химическим составом, свариваемостью, обеспечивающими работоспособность кранов в диапазонах, указанных настоящим стандартом.
2.3.2. Материалы для изготовления кранов в тропическом исполнении должны соответствовать требованиям ГОСТ 15151.
2.4. Требования к сборочным единицам
2.4.2. Кривизна заготовок двутавров, швеллеров и уголков не должна превышать 2 мм на 1000 мм.
Кривизна пролетной балки
крана после правки не должна превышать
L мм
в горизонтальной плоскости, где L - полная длина балки, мм.
2.4.3. Прокат, предназначенный для изготовления кранов, должен быть очищен от коррозии, грязи и выправлен.
Не допускается употребление проката с трещинами, закатами, расслоениями, шлаковыми включениями и другими дефектами.
На рабочей поверхности нижней полки двутавра пролетной балки допускаются забоины и вмятины глубиной не более 1 мм.
Уступы должны быть сняты с уклоном 1:50.
2.4.6. В отливках из чугуна не допускаются:
на обрабатываемых поверхностях: отбел, трещины и спаи, превышающие по глубине припуск на механическую обработку;
на необрабатываемых поверхностях: отбел более 10 % толщины стенки.
2.4.7. Пороки в стальных отливках, влияющие на прочность, подлежат исправлению заваркой, если глубина вырубки для их удаления не превышает 50 % толщины стенки.
Вырубка должна быть до чистого металла по всей поверхности заварки. После заварки дефектов, влияющих на прочность, отливки должны быть подвергнуты термической обработке для снятия напряжений от сварки.
2.4.8. Раковины и трещины на валах и осях не допускаются.
2.4.9. Параметр шероховатости посадочных поверхностей отверстий ходовых и зубчатых колес, посадочных мест валов должен быть Ra £ 2,5 мкм по ГОСТ 2789.
2.5. Требования к сварным соединениям
2.5.1. При изготовлении кранов следует применять все промышленные способы сварки при условии обеспечения свойств сварных соединений в соответствии с требованиями «Правил устройства и безопасной эксплуатации грузоподъемных кранов» и нормативно-технической документации на сварку.
2.5.2. Типы и конструктивные элементы швов сварных соединений должны соответствовать ГОСТ 5264, ГОСТ 8713, ГОСТ 11533, ГОСТ 11534, ГОСТ 14771, ГОСТ 14776, ГОСТ 15878, ГОСТ 15164.
2.5.3. При контроле качества сварных соединений внешним осмотром и измерениями не допускаются:
трещины всех размеров и направлений;
местные наплывы общей длиной более 100 мм на участке шва 1000 мм;
подрезы глубиной 0,5 мм на металле толщиной до 20 мм, но не более 3 % толщины металла;
поры диаметром более 1 мм при толщине металла до 20 мм и более 1,5 мм - при толщине металла свыше 20 мм в количестве более 4 шт. на длине шва 100 мм с расстоянием между смежными дефектами менее 50 мм;
незаваренные кратеры;
прожоги и свищи;
поры, расположенные в виде сплошной сетки.
трещины, непровары, поры и шлаковые включения размером более 2 мм в количестве 4 шт. на длине шва 300 мм с расстоянием между дефектами менее 10 мм;
поры и шлаковые включения, расположенные вдоль шва цепочкой или сплошной линией суммарной длиной 60 мм на длине шва 300 мм;
поры и шлаковые включения размером менее 2,0 мм в количестве более 4 шт. на длине шва 300 мм, если суммарная площадь их больше площади 4 пор размером 2,0 мм;
скопление пор и шлаковых включений более 5 шт. на 1 см2 площади шва.
Выявленные дефекты подлежат исправлению с повторной заваркой.
2.6. Требования к покрытиям
2.6.1. Подготовка металлических поверхностей к окраске должна соответствовать ГОСТ 9.402.
Металлоконструкция крана и механизмы передвижения должны быть загрунтованы и окрашены эмалью в следующие цвета:
металлоконструкция - в серый;
механизм передвижения, приводные и холостые тележки - в желтый;
масленки, сливные пробки и внутренние поверхности редукторов - в красный.
Внешний вид поверхности покрытия должен соответствовать VI классу ГОСТ 9.032.
По согласованию изготовителя с заказчиком допускается изготовлять краны с загрунтованными металлоконструкциями.
Краны, за исключением случаев, указанных в контракте, должны быть окрашены:
эмалью ХВ-124 по ГОСТ 10144-для стран с умеренным климатом;
эмалью ХВ-110 по ГОСТ 18374 для стран с тропическим климатом или другими эмалями, обеспечивающими требуемое качество окраски.
Цвета окраски - по ГОСТ 12.4.026 и в соответствии с контрактом между изготовителем и иностранным заказчиком.
Класс покрытия - V по ГОСТ 9.032.
Для кранов, изготовляемых для экспорта в страны с умеренным климатом, крепежные детали должны быть подвергнуты цинкованию толщиной слоя от 9 до 12 мкм на детали и от 6 до 9 мкм на резьбе по ГОСТ 9.306 с последующим пассивированием.
2.7. Требования к электрооборудованию
2.7.2. Электрические краны должны изготавливаться со степенью защиты электрооборудования не ниже IP20 по ГОСТ 14254.
По требованию заказчика электрические краны могут изготавливаться со степенью защиты электрооборудования не ниже IP44 по ГОСТ 14254.
2.7.3. Электрическая аппаратура со степенью защиты ниже IP20 по ГОСТ 14254 должна устанавливаться в шкафу.
2.7.4. Окончательный монтаж электрооборудования на электрическом кране должен производиться у потребителя.
2.8.1. Средний срок службы кранов - не менее 20 лет; наработка на отказ - не менее 3000 циклов.
Удельная суммарная оперативная трудоемкость технических обслуживаний и текущих ремонтов должна соответствовать указанным в табл. 15.
Значения наработки на отказ определяют по следующим критериям:
выход из строя (вследствие разрушения, наступления предельно допустимого износа, появления трещин, заклинивания и т.п.) любого из элементов кинематической цепи механизмов крана;
возникновения опасных для дальнейшей эксплуатации трещин в элементах металлической конструкции крана;
выход из строя электродвигателей, аппаратуры управления и устройств токоподвода.
При определении наработки на отказ не подлежат учету отказы, вызванные мелкими неисправностями (срабатывание аппаратов электрозащиты, выход канатов из ручьев блоков, перегорание электрических ламп и т.п.), устранение которых производится силами обслуживающего персонала за время не более 30 мин, а также отказы, устраняемые при плановом техническом обслуживании крана, явившиеся следствием скрытых дефектов комплектующего оборудования.
Таблица 15
|
Краны грузоподъемностью, т |
||||
|
электрические однопролетные и ручные |
электрические двухпролетные |
|||
|
1; 2; 3,2 |
5; 8; 10 |
1; 2; 3,2 |
5; 8; 10 |
|
|
Удельная суммарная оперативная трудоемкость технических обслуживаний, чел.-ч/ч, не более |
0,007 |
0,008 |
0,012 |
0,015 |
|
Удельная суммарная оперативная трудоемкость текущих ремонтов, чел.-/ч, не более |
0,02 |
0,025 |
0,03 |
0,035 |
2.9. Требования безопасности
2.9.2. Электрический кран должен быть оборудован следующими предохранительными устройствами: ограничителем высоты подъема груза, буферами и тупиковыми упорами, ограничивающими передвижение электрической тали, буферами, ограничивающими передвижение электрического крана, концевыми выключателями механизма передвижения крана.
2.9.3. Электрооборудование и металлоконструкция электрического крана должны иметь защитное заземление по ГОСТ 12.1.030.
2.9.4. Корпус крюковой подвески должен иметь предупреждающую окраску по ГОСТ 12.2.058.
2.9.5. Краны должны быть снабжены тупиковыми упорами крайних положений тали.
2.10. Комплектность
2.10.1. Комплектность электрического крана грузоподъемностью от 1 до 8 т указана в табл. 16.
Таблица 16
|
Комплектность, шт. |
||
|
однопролетного электрического крана |
двухпролетного электрического крана |
|
|
Балка пролетная |
1 |
1 |
|
Балка концевая |
2 |
3 |
|
Балка промежуточная |
- |
1 |
|
Таль электрическая |
1 |
1 |
|
Раскосы (кроме кранов с пролетами 3,0 и 4,2 м) (комплектно) |
1 комплект |
1 комплект |
|
Электрооборудование (комплектно) |
1 комплект |
1 комплект |
2.10.2. В комплект электрического крана грузоподъемностью 10 т должны входить:
мост в сборе - 1 шт.;
таль электрическая - 1 шт.;
электрооборудование (комплектно) - 1 комплект.
2.10.3. При подводе питания к электрическому крану посредством гибкого кабеля токоприемники в комплект крана не входят.
2.10.4. К каждому электрическому крану должны быть приложены:
паспорт;
комплектовочная ведомость;
паспорт тали;
руководство по монтажу и эксплуатации - по ГОСТ 2.601.
2.10.5. К каждому электрическому крану в экспортном исполнении должны быть приложены:
паспорт;
паспорт тали;
инструкция по монтажу и эксплуатации электрического крана;
инструкция по ремонту;
каталог запасных частей;
товаросопроводительная документация;
комплектовочная ведомость;
упаковочный лист;
отгрузочная спецификация;
сертификат о качестве.
2.10.6. Для кранов, изготовляемых для экспорта, техническая и товаросопроводительная документация составляется на языке и в количестве, указанном в контракте между изготовителем и иностранным заказчиком.
2.10.7. Для электрических кранов, изготовляемых для экспорта, комплект запасных частей - в соответствии с ведомостью ЗИП, если другое не указано в контракте между изготовителем и иностранным заказчиком.
2.10.8. В комплект ручного крана должны входить:
балка пролетная - 1 шт.;
таль ручная - 1 шт.;
балка концевая - 2 шт.;
раскосы (кроме кранов с пролетами 3,0 и 4,5 м) - 1 комплект.
2.10.9. К каждому ручному крану должны быть приложены:
паспорт;
товаросопроводительная документация;
паспорт тали;
чертежи общего вида, руководство по эксплуатации.
2.11. Маркировка
2.11.1. На каждом электрическом кране должна быть установлена табличка по ГОСТ 12969 и ГОСТ 12971, на которой указывают:
наименование или товарный знак изготовителя;
дату выпуска электрического крана;
порядковый номер по системе нумерации изготовителя;
условное обозначение электрического крана.
На каждом электрическом кране, изготовляемом для экспорта, должна быть прикреплена табличка, содержащая:
товарный знак изготовителя при условии его регистрации страной, в которую экспортируется электрический кран;
наименование электрического крана;
исполнение;
грузоподъемность, т;
высоту подъема, м;
режим работы;
напряжение сети, В;
частоту тока, Гц;
массу электрического крана, т;
порядковый номер электрического крана по системе нумерации изготовителя;
год выпуска.
Надписи выполняются на русском языке или на языке, указанном в контракте между изготовителем и иностранным заказчиком.
На каждом ручном кране должна быть установлена табличка по ГОСТ 12969 и ГОСТ 12971, на которой указывают:
наименование или товарный знак изготовителя;
наименование изделия;
грузоподъемность;
дату выпуска;
порядковый номер по системе нумерации изготовителя.
На каждом ручном кране, изготовляемом для экспорта, должна быть прикреплена табличка, содержащая:
товарный знак изготовителя, при условии его регистрации страной, в которую экспортируется ручной кран;
наименование ручного крана;
исполнение;
грузоподъемность, т;
высоту подъема, м;
режим работы;
массу ручного крана, т;
порядковый номер ручного крана по системе нумерации изготовителя;
год выпуска.
Надписи выполняются на русском языке или на языке, указанном в контракте между изготовителем и иностранным заказчиком.
2.11.2. Маркировка грузовых мест - по ГОСТ 14192, а для кранов в экспортном исполнении - с учетом требований контракта между изготовителем и иностранным заказчиком.
2.12. Упаковка
2.12.1. Консервация деталей и сборочных единиц крана - по ГОСТ 9.014.
Срок консервации крана - 3 года, запасных частей - 5 лет.
2.12.2. Металлоконструкции кранов транспортируются неупакованными, при этом они должны быть закреплены от смещения при транспортировании.
2.12.3. Упаковка и транспортирование электрических талей - по ГОСТ 22584.
2.12.4. Остальные детали, сборочные единицы и эксплуатационная документация должны быть вложены в дощатые ящики по ГОСТ 2991 или ГОСТ 10198 либо в другую тару, которая обеспечивает сохранность деталей, сборочных единиц и эксплуатационной документации при транспортировании и хранении.
Документация должна быть вложена в пакет из полиэтиленовой пленки по ГОСТ 10354.
В экспортном исполнении упаковке в ящики подлежат электрические тали, магнитный пускатель, кнопочный пост управления, провода, кабель, запасные части, другие комплектующие изделия и товаросопроводительная документация.
Тара для упаковывания для экспорта должна быть изготовлена по ГОСТ 24634, а также удовлетворять требованиям контракта между изготовителем и иностранным заказчиком.
В тару для упаковывания деталей, сборочных единиц и эксплуатационной документации вкладываются мешочки с силикагелем марки КСМ по ГОСТ 3956, влажность которого должна быть не более 2%, и в количестве, предусмотренном нормативно-технической документацией на краны.
3. ПРИЕМКА
3.1. Для проверки соответствия крана требованиям настоящего стандарта изготовитель должен проводить приемосдаточные и периодические испытания.
3.2. Приемосдаточным испытаниям подвергают все сборочные единицы металлоконструкций и механизмов, электрооборудование крана и проверяют на соответствие требованиям пп. 2.4-2.7 настоящего стандарта, в том числе правильность применения материалов (п. 2.3.3) и комплектующих изделий (пп. 2.4.1, 2.7.2, 2.7.3), качество сварных соединений (пп. 2.5.3, 2.5.4), качество покрытий (пп. 2.6.1, 2.6.2) и работу всех механизмов вхолостую.
3.3. Приемосдаточные испытания кранов, изготовляемых в тропическом исполнении, должны проводиться с учетом требований ГОСТ 15151, а для кранов, изготовляемых для экспорта, по программе, согласованной изготовителем с иностранным заказчиком или в соответствии с условиями контракта.
3.4. Периодическим испытаниям подвергают до 2 % годового выпуска кранов, но не менее одного крана каждой грузоподъемности один раз в три года по программе, согласованной и утвержденной в установленном порядке.
Периодические испытания проводят на соответствие кранов всем требованиям настоящего стандарта и конструкторской документации.
3.5. При периодических испытаниях проводится:
контрольная сборка крана;
техническое освидетельствование в объеме, предусмотренном «Правилами устройства и безопасной эксплуатации грузоподъемных кранов»;
обкатка крана без нагрузки;
испытание крана под нагрузкой по программе и методике периодических испытаний.
4. МЕТОДЫ КОНТРОЛЯ И ИСПЫТАНИЙ
4.1. Проверку требований пп. 2.2.1-2.2.7, 2.4.5-2.4.9, 2.6.3-2.6.4, 2.7.1-2.7.3 и 2.11.1 проводят внешним осмотром и измерениями.
4.2. Соответствие материалов (п. 2.3.3) требованиям действующих стандартов подтверждается сертификатами, комплектующих изделий - паспортами на них. В случае отсутствия сертификата качество металла должно быть проверено лабораторией изготовителя крана.
4.3. Предельные отклонения формы и размеров (пп. 2.4.2-2.4.4) проверяют универсальными и специальными средствами измерений.
4.4. Шероховатость поверхности (п. 2.4.9) проверяют сравнением с образцами шероховатости по ГОСТ 9378.
4.5. Качество швов сварных соединений контролируют внешним осмотром и измерениями (п. 2.5.3), а также радиографическим методом (пп. 2.2.7, 2.5.4) по ГОСТ 7512 и ОСТ 24.090.63.
Радиографическому контролю подвергают не менее 25 % длины каждого сварного шва контролируемого соединения. Места сварных швов, подвергающихся радиографическому контролю, устанавливает отдел технического контроля изготовителя.
4.6. Контроль качества металлических поверхностей (п. 2.6.1), подготовленных к окраске, - по ГОСТ 9.402.
4.7. Качество лакокрасочных покрытий (п. 2.6.1) проверяют внешним осмотром и сравнением с эталонами, утвержденными в установленном порядке.
4.8. Испытания лакокрасочных покрытий поверхностей металлоконструкций кранов, предназначенных для экспорта в районы с тропическим климатом (п. 2.6.2), - по ГОСТ 9.401.
4.9. Приводные тележки механизма передвижения электрического крана испытывают обкаткой не менее 5 мин в каждую сторону электродвигателем тележки под нагрузкой, равной половине его номинальной электрической мощности.
Приводные тележки ручного крана проверяют вращением не менее 10 оборотов в каждую сторону с окружным усилием не более 10 Н.
Для кранов, изготовляемых для экспорта, приводные тележки механизма передвижения крана испытывают обкаткой в обе стороны не менее 20 мин в каждую сторону. Нагрузка электродвигателя тележки при обкатке должна быть равна половине его номинальной электрической мощности.
4.10. Показатели надежности (п. 2.8.1) контролируют в условиях эксплуатации по методикам, утвержденным в установленном порядке, при обеспечении учета продолжительности работы крана, трудоемкости ремонта и обслуживания.
Методы учета, сбора и обработки данных по надежности должны соответствовать требованиям РД 50-690 и отраслевых нормативных документов.
5. ТРАНСПОРТИРОВАНИЕ И ХРАНЕНИЕ
5.1. Транспортирование крановых металлоконструкций допускается в открытых транспортных средствах по группе условий хранения ОЖ1 ГОСТ 15150, сборочных единиц, комплектующих изделий и оборудования, упакованного в транспортные ящики, - по группе ОЖ2 ГОСТ 15150.
5.2. Хранение деталей и сборочных единиц - по группе условий хранения Ж1 ГОСТ 15150.
5.3. Для кранов, изготовляемых для экспорта, условия хранения и транспортирования - по ГОСТ 15150: для кранов, предназначенных для стран с умеренным климатом, группа условий Ж1, для стран с тропическим климатом - ОЖ1.
6. УКАЗАНИЯ ПО ЭКСПЛУАТАЦИИ
Монтаж и эксплуатация крана должны осуществляться в соответствии с «Правилами устройства и безопасной эксплуатации грузоподъемных кранов», утвержденными Госгортехнадзором СССР, «Правилами устройства электроустановок (ПУЭ-86)», утвержденными Министерством энергетики и электрификации СССР.
7. ГАРАНТИИ ИЗГОТОВИТЕЛЯ
7.1. Изготовитель гарантирует соответствие кранов требованиям настоящего стандарта при соблюдении условий эксплуатации, транспортирования, хранения и монтажа, установленных стандартом.
7.2. Гарантийный срок эксплуатации - 18 мес со дня ввода в эксплуатацию для электрических кранов и 24 мес - для ручных кранов.
ИНФОРМАЦИОННЫЕ ДАННЫЕ
|
Обозначение НТД, на который дана ссылка |
Номер пункта |
Обозначение НТД, на который дана ссылка |
Номер пункта |
|
ГОСТ 2.601-68 |
ГОСТ 11533-75 |
||
|
ГОСТ 9.014-78 |
ГОСТ 11534-75 |
||
|
ГОСТ 9.032-74 |
ГОСТ 12707-77 |
||
|
ГОСТ 9.306-85 |
ГОСТ 12969-67 |
||
|
ГОСТ 9.401-91 |
ГОСТ 12971-67 |
||
|
ГОСТ 9.402-80 |
ГОСТ 14192-77 |
||
|
ГОСТ 12.1.030-81 |
ГОСТ 14254-80 |
||
|
ГОСТ 12.2.003-91 |
ГОСТ 14771-76 |
||
|
ГОСТ 12.2.058-81 |
ГОСТ 14776-79 |
||
|
ГОСТ 12.4.026-76 |
ГОСТ 15150-69 |
Вводная часть, 5.1, |
|
|
ГОСТ 2789-73 |
|
||
|
ГОСТ 2991-85 |
ГОСТ 15151-69 |
||
|
ГОСТ 3956-76 |
ГОСТ 15164-78 |
||
|
ГОСТ 5264-80 |
ГОСТ 15878-79 |
||
|
ГОСТ 7512-82 |
ГОСТ 18374-79 |
||
|
ГОСТ 8713-79 |
ГОСТ 19425-74 |
||
|
ГОСТ 9109-81 |
ГОСТ 22584-88 |
||
|
ГОСТ 9378-75 |
ГОСТ 24634-81 |
||
|
ГОСТ 10144-89 |
ОСТ 24.090.63-87 |
||
|
ГОСТ 10198-91 |
РД 50-690-89 |
||
|
ГОСТ 10354-82 |
|
|
СОДЕРЖАНИЕ
|
1. Типы, основные параметры и размеры.. 2 4. Методы контроля и испытаний. 21 5. Транспортирование и хранение. 21 |
Хотите оперативно узнавать о новых публикациях нормативных документов на портале? Подпишитесь на рассылку новостей!
Все ГОСТы >> ГОСТы «Строительная техника и оборудование, грузоперевозки >>



